File Tiếng Anh
HƯỚNG DẪN LẮP ĐẶT – MÔ-ĐUN ĐIỆN MẶT TRỜI (SOLAR PV MODULES)
Văn phòng đăng ký (Trụ sở chính):
Panasonic Life Solutions India Pvt. Ltd. (Trước đây là Anchor Electrical)
Tầng 12, Ambience Tower, Ambience Island, NH-48, Gurugram,
Haryana – 122002, Ấn Độ. ĐT: (9122) 4222 8888 | Fax: (9122) 4222 8888
Website: www.lsin.panasonic.com Email: solar@in.panasonic.com
NỘI DUNG – CONTENTS
- 1. Tuyên bố trách nhiệm
- 2. Biện pháp an toàn
- 2.1 Phòng cháy chữa cháy
- 3. Hướng dẫn mở kiện & tiền lắp đặt mô-đun
- 3.1 Nhận diện mô-đun
- 4. Yếu tố môi trường
- 4.1 Điều kiện khí hậu
- 5. Chọn vị trí lắp đặt
- 6. Hướng dẫn lắp đặt
- 6.1 Phương pháp lắp
- A. Lắp bằng bulông
- B. Lắp bằng kẹp
- 6.2 Nối đất (tiếp địa) cho mô-đun
- 6.3 Đấu dây mô-đun
- 6.4 Đầu nối MC4
- 6.5 Diode bypass
- 6.6 Cáp & đi dây
- 6.1 Phương pháp lắp
- 7. An toàn & nhận thức điện
- 7.1 Chọn & tương thích inverter
- 8. Vận hành & bảo trì mô-đun
- 9. Tái chế & cuối vòng đời sản phẩm
- 10. Cảnh báo
- 11. Thông tin liên hệ
1. TUYÊN BỐ TRÁCH NHIỆM (Responsibility Declaration)
- Tài liệu hướng dẫn lắp đặt này đáp ứng yêu cầu cho mô-đun điện mặt trời Anchor by Panasonic.
- Chỉ dành cho kỹ thuật viên đã được đào tạo. PLSIND không chịu trách nhiệm cho mọi sai sót do thao tác sai hoặc không tuân thủ hướng dẫn. Mọi mất mát, hư hại, nguy hiểm, chấn thương hay chi phí do lắp đặt/sử dụng/bảo trì không đúng quy định không thuộc phạm vi của PLSIND.
- PLSIND không chịu trách nhiệm về việc vi phạm quyền sở hữu trí tuệ của bên thứ ba do việc sử dụng mô-đun. Không cấp phép rõ ràng hay ngụ ý nào đối với bằng sáng chế.
- Thông tin trong hướng dẫn dựa trên chuyên môn của Anchor by Panasonic và có thể thay đổi mà không cần thông báo trước, bao gồm thông số mô-đun.
- Áp dụng cho cả dòng mô-đun 1500V và 1000V.
2. BIỆN PHÁP AN TOÀN (Safety Precautions)
- Việc lắp đặt mô-đun PV phải do người có chuyên môn thực hiện.
- Trước khi lắp đặt, đấu dây, vận hành hoặc bảo trì, kỹ thuật viên cần hiểu đầy đủ yêu cầu lắp đặt/vận hành/bảo trì của mô-đun/hệ thống.
- Sử dụng dụng cụ cách điện và trang bị bảo hộ phù hợp để giảm rủi ro điện giật.
- Không đứng/giẫm lên mô-đun. Không làm hư hại mặt trước/mặt sau. Không sử dụng mô-đun có kính/backsheet bị vỡ – chạm vào bề mặt hoặc khung mô-đun vỡ có thể gây điện giật; mô-đun vỡ không thể sửa, phải loại bỏ đúng cách.
- Không ngắt kết nối mô-đun khi đang có tải.
- Mỗi mô-đun Anchor có thể phát >35V DC và cao hơn khi nối nối tiếp; việc kết nối/ngắt phải do người có kinh nghiệm thực hiện.
- Tránh làm bẩn đầu nối; không để đầu cắm dính bụi bẩn.
- Không lắp đặt/thi công khi trời mưa hoặc gió lớn; không để mô-đun ngập nước hoàn toàn.
2.1 PHÒNG CHÁY CHỮA CHÁY (Fire Precautions)
- Tham khảo cơ quan địa phương về quy định PCCC; tuân thủ quy chuẩn phòng cháy mái và quy định xây dựng.
- Chỉ lắp trên mái chống cháy; lắp đặt sai có thể gây nguy hiểm khi cháy.
- Tránh lắp gần chất lỏng/khí dễ cháy, khu vực vật liệu nguy hiểm; lắp đặt kém hoặc linh kiện hỏng có thể gây sự cố điện.
- Khi xảy ra cháy, mô-đun PV có thể vẫn tạo ra điện áp/dòng nguy hiểm dù đã ngắt inverter hoặc bị hư hại. Thông báo đội PCCC về nguy cơ đặc thù của hệ PV; tránh xa cho đến khi xử lý an toàn.
- Mô-đun Anchor by Panasonic là Class A, khả năng chống cháy Class C theo IEC 61730; mặt trước là kính cường lực – xử lý cực kỳ cẩn thận. Tiếp xúc bề mặt kính bị vỡ, đặc biệt khi ẩm ướt, có thể điện giật. Mô-đun vỡ phải thải bỏ đúng cách.
- Cảnh báo bề mặt nóng: Trong vận hành bình thường, sản phẩm có thể đạt 45°C ± 2°C – thận trọng khi chạm.
3. MỞ KIỆN & HƯỚNG DẪN TRƯỚC KHI LẮP (PV Module Unpacking & Pre-mounting)
- Khi nhận hàng, đối chiếu thông số sản phẩm theo đơn đặt; số serial và chi tiết có trên thùng mô-đun.
- Không chồng quá 2 pallet; nếu lưu kho ngoài trời, che phủ bảo vệ.
- Hai người thực hiện khi mở thùng theo hình minh họa.
- Xử lý không đúng có thể gây xước/hư mô-đun.
- Không chập cực + và – của hộp nối bất kỳ lúc nào. Người không chuyên không được đấu điện nếu không có giám sát kỹ thuật.
- Dùng kìm cắt để cắt dây rút mô-đun; không dùng dao để tránh làm hỏng mô-đun.
3.1 Nhận diện mô-đun (Module Identification)
- Mỗi mô-đun có số serial duy nhất được ép giữa kính trước và backsheet.
- Trách nhiệm của đơn vị lắp đặt là ghi lại toàn bộ số serial các mô-đun nhận được.
4. YẾU TỐ MÔI TRƯỜNG (Environmental Factors)
4.1 Điều kiện khí hậu (Climatic Conditions)
Mô-đun Anchor by Panasonic đạt chứng nhận IEC 61215/IS14286, IEC/UL 61730, IEC 61701 (ăn mòn sương muối – Mức I), IEC 62716, IEC 62804, phân hạng Application Class A. Có thể lắp ở khí hậu biển (Mức I).
Dải điều kiện vận hành/bao quản:
| Điều kiện | Phạm vi |
|---|---|
| Nhiệt độ môi trường | -40°C đến +50°C |
| Nhiệt độ làm việc | -40°C đến +85°C |
| Nhiệt độ lưu kho | -40°C đến +40°C |
| Độ ẩm | < 85% RH |
| Tải cơ học: gió | theo datasheet |
| Tải cơ học: tuyết | ≤ 5400 Pa |
Chịu tải & kết cấu:
- Sức chịu tải phụ thuộc phương án lắp; kỹ sư kết cấu chịu trách nhiệm tính toán theo tiêu chuẩn địa phương, dùng vật liệu bền, chống ăn mòn & UV để đáp ứng 25 năm (Poly/Mono/Mono PERC) hoặc 30 năm (TOPCon).
- Bảo đảm hệ giá đỡ chịu tải gió/tuyết theo quy chuẩn, không vượt tải cho phép của mô-đun (2400 Pa gió, 5400 Pa tuyết).
- Khuyến nghị góc nghiêng tối ưu theo vĩ độ, hướng Nam (Bắc bán cầu) / Bắc (Nam bán cầu); tránh bóng che (bóng thường xuyên gây hot-spot và mất bảo hành).
- Các mô-đun nối tiếp cần lắp cùng góc để tránh tổn thất do nhận bức xạ không đều.
- Hậu cần/nhận hàng: Kiểm đếm pallet theo phiếu vận chuyển/packing list, ghi chú chênh lệch và ký xác nhận với tài xế; báo ngay PLSIND – Logistics nếu hư hỏng pallet, kèm ảnh để xử lý bảo hiểm.
5. CHỌN VỊ TRÍ LẮP (Site Selection)
- Lắp ở nơi có nắng đầy đủ, không bóng che.
- Có thể lắp portrait hoặc landscape; lắp portrait giảm ảnh hưởng bám bẩn dọc mép.
- Khuyến nghị nhiệt độ môi trường làm việc khi lắp: -20°C đến 50°C; dải vận hành mô-đun -40°C đến 85°C.
- Để tối ưu sản lượng, hướng mô-đun về đường xích đạo với góc bằng vĩ độ khu vực (thay đổi góc/hướng sẽ ảnh hưởng công suất).
- Không lắp dưới nước; không lắp trên phương tiện chuyển động (xe, tàu). Không dùng lỗ thoát nước để bắt vít.
6. HƯỚNG DẪN LẮP ĐẶT (Mounting Instruction)
6.1 Phương pháp lắp (Mounting Methods)
- Hỗ trợ lắp bulông và lắp kẹp. Với bulông, dùng M8x35 – A4 (DIN 933) Inox.
- Khoảng cách từ khung mô-đun tới mái/tường ≥ 100 mm; khoảng hở giữa các mô-đun ≥ 20 mm.
- Không che lỗ thoát nước. Không vượt tải gió/tuyết cho phép; xử lý giãn nở nhiệt của kết cấu để tránh gây hư hại (không thuộc bảo hành). Giữ khoảng sáng đất đủ để mép dưới không chôn trong tuyết lâu ngày ở vùng có tuyết.
A. Lắp bằng bulông (Bolt Type Mounting)
- Khung nhôm có 8 lỗ lắp 9×14 mm. Dùng ít nhất 4 lỗ (đối xứng 2 cạnh), khuyến nghị M8, 2 long đen phẳng + 1 long đen vênh + 1 đai ốc theo thứ tự: Bulông + Long đen phẳng + Khung mô-đun + Long đen phẳng + Long đen vênh + Đai ốc.
- Mô-men siết khuyến nghị: 20–25 N·m.
B. Lắp bằng kẹp (Clamp Type Mounting)
- Cần 4 kẹp/mô-đun. Kẹp không chạm kính và không đổ bóng lên mặt trước.
- Chiều dài kẹp ≥ 50 mm, phần chồng lên khung ≤ 7 mm; lực nén tối đa mỗi kẹp: ~20 MPa (≈ 2900 PSI). Tránh làm trầy anodize khung (dễ ăn mòn, không bảo hành).
- Không được thay đổi/khoan cắt khung. Hỗ trợ end clamp và mid clamp theo sơ đồ trong tài liệu.
- Bảng vị trí kẹp và tải cơ học tối đa theo dòng mô-đun AE10/AE14/AE13 được nêu chi tiết trong tài liệu gốc.
6.2 NỐI ĐẤT CHO MÔ-ĐUN (PV Module Grounding)
- Theo NEC 250, khung mô-đun và kết cấu kim loại phải nối đất đúng quy chuẩn. Dùng dây đồng/đồng hợp kim (theo chuẩn quốc gia) nối vào điện cực đất.
- Tuốt 16 mm vỏ cách điện đầu dây, kẹp vào lug và siết vít.
- Sử dụng phụ kiện tiếp địa tiêu chuẩn (ví dụ Tyco/TE) theo hướng dẫn nhà sản xuất; mô-men siết tham chiếu: 2,3–2,8 N·m cho vít khung; 5 N·m cho bulông kẹp dây; 4 N·m cho bulông máy tại điểm neo lug (tùy bộ).
- Khuyến nghị tiết diện dây 6–12 AWG (đồng trần) với bộ bulông tiếp địa tương ứng.
6.3 ĐẤU DÂY MÔ-ĐUN (PV Module Wiring)
- Đấu dây bởi kỹ thuật viên theo chuẩn địa phương.
- Thiết kế chuỗi để điện áp hệ thống (ở nhiệt độ thấp nhất) không vượt mức cho phép của mô-đun/inverter; chọn theo dải MPPT.
- Nối nối tiếp để tăng điện áp (tạo string). Khi đấu MC4, phải nghe “click” để đảm bảo khóa chặt. Khuyến nghị ≤ 2 string song song với cầu chì string bảo vệ thích hợp.
- Đảo cực/string sai có thể hư hỏng vĩnh viễn (không bảo hành). Trước khi song song, đo kiểm điện áp & cực tính; nếu lệch 10V hoặc ngược cực, cần kiểm tra lại mạch/string.
- Mô-đun dùng cáp đồng 4 mm², chịu 1000V/1500V (IEC/UL), 90°C, chống UV. Điện áp hệ thống tối đa phải < ngưỡng cho phép & < input inverter.
6.4 ĐẦU NỐI (MC4/Connectors)
- Bảo vệ đầu nối chưa cắm khỏi ẩm/bụi; chỉ đầu nối sạch & khô mới đạt cấp IP. Siết chặt nắp chụp trước khi kết nối. Tránh phơi nắng/ngâm nước đầu nối; không để tì trên mái/đất.
- Kết nối sai có thể gây phóng hồ quang/điện giật; đảm bảo khóa chốt đầy đủ.
- Hộp nối có diode bypass song song theo chuỗi cell – giúp giới hạn nóng cục bộ & hao hụt khi bóng che cục bộ (không phải thiết bị bảo vệ quá dòng).
- Đầu nối phải tuân chuẩn dành cho hệ PV.
6.5 DIODE BYPASS
- Chuyển hướng dòng khi che bóng cục bộ, giảm tổn thất & nóng điểm.
- Hộp nối đổ keo (potted): không thay diode; nếu hỏng phải thay cả hộp nối.
6.6 CÁP & ĐI DÂY (Cables & Wiring)
- Mô-đun xuất xưởng có 2 cáp chống UV đầu MC4: (+): đực, (–): cái (theo ký hiệu).
- Dây hiện trường: chọn tiết diện phù hợp Isc tối đa; khuyến nghị ≥ 12 AWG / 4 mm², dải nhiệt -40°C đến 90°C.
- Dùng dây rút chịu nhiệt, bán kính uốn ≥ 5× đường kính cáp, tránh ứng suất kéo; hạn chế phơi nắng/ngâm nước khi có thể.
- Chống sét: Phân tích rủi ro theo IEC 62305-2, lắp kim thu sét/SPD (DC/AC) theo IEC 61643-11, liên kết đẳng thế để bảo vệ toàn hệ.
- Cầu chì: Lắp trên cực không nối đất của chuỗi; dòng cầu chì tối đa theo nhãn mô-đun/datasheet (cũng là dòng ngược tối đa cho phép).
7. AN TOÀN & NHẬN THỨC ĐIỆN (Electrical Safety & Awareness)
- Hệ PV hoạt động ở điện áp nguy hiểm gần mức điện áp hệ thống; tiếp xúc có thể gây điện giật, hồ quang, cháy.
- Khi tách mảng PV, dùng công tắc DC/isolator đủ cấp; sau khi tách, nguồn DC có thể còn duy trì một thời gian – chỉ người được đào tạo mới được vận hành/bảo trì.
- Anchor by Panasonic không chịu trách nhiệm cho mọi sự cố tại nhà máy sử dụng mô-đun Anchor.
7.1 CHỌN INVERTER & TƯƠNG THÍCH (Inverter Selection & Compatibility)
- Số mô-đun nối tiếp/song song theo khuyến nghị của nhà sản xuất inverter, có xét điều kiện khí hậu địa phương.
8. VẬN HÀNH & BẢO TRÌ (Operation & Maintenance)
- Nhà máy PV thiết kế tốt cần bảo trì tối thiểu.
- Kiểm tra kết cấu giá đỡ, đảm bảo siết chặt theo hướng dẫn lắp.
- Loại bỏ bóng che (cây/công trình/lá rụng).
- Đảm bảo đấu cáp chặt, không ngập nước/đọng nước.
- Vệ sinh mô-đun: dùng bộ vệ sinh mềm/khăn mềm; độ cứng nước < 75 mg/L, pH = 7, áp lực tia ≤ 35 bar; có thể rửa ướt, khí nén, chổi quay, chổi khô. Lau khô để không đọng vệt nước; vệ sinh sáng sớm/đêm, định kỳ. Nhiệt độ nước ~ nhiệt độ mô-đun để tránh sốc nhiệt (gây hỏng, mất bảo hành).
- Cấm leo dẫm lên bề mặt mô-đun (gây vi nứt). Giữ bề mặt sạch bụi/phan chim – tích tụ có thể gây hư tế bào.
9. TÁI CHẾ & CUỐI VÒNG ĐỜI (Product Recycling & End of Life)
- Hết vòng đời, tái chế theo cách không gây hại môi trường; liên hệ dịch vụ Anchor by Panasonic để được hướng dẫn.
10. CẢNH BÁO (Warning)
Anchor by Panasonic không chịu trách nhiệm với mọi tai nạn tại nhà máy dùng mô-đun Anchor.
11. THÔNG TIN LIÊN HỆ (Contact Details)
Panasonic Life Solutions India Pvt. Ltd. (Trước đây là Anchor Electrical)
Tầng 3, khối B, I-Think Techno Campus, Pokhran Road No.2, Thane (Tây),
Thane-400607, Ấn Độ. ĐT: (9122) 4222 8888 | Fax: (9122) 4222 8888
Website: www.lsin.panasonic.com Email: solar@in.panasonic.com
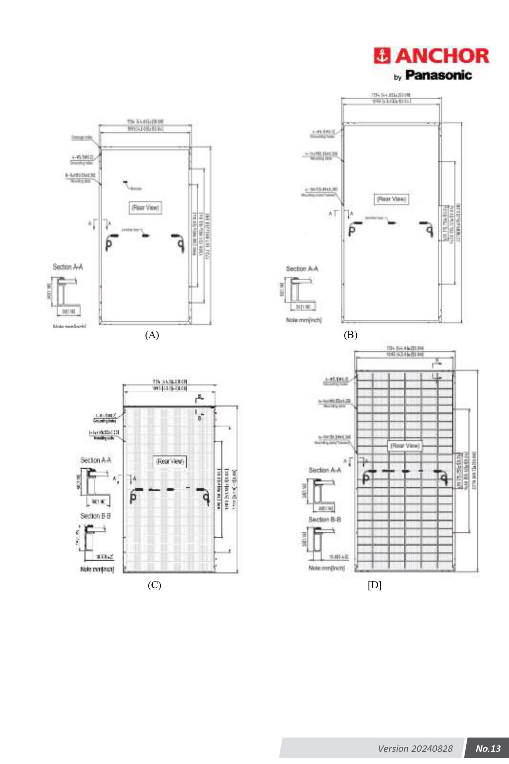
Phụ lục mô tả mẫu & kích thước mô-đun (trích yếu)
- A] 108 half-cell Mono PERC – AE10HXXXUHC10B1/2 (390–410 Wp)
- B] 144 half-cell Mono PERC – AE14HXXXVHC10B (540–560 Wp)
- C] 108 half-cell N-type TOPCon 2 kính – AE10TXXXUHC16B6 (420–440 Wp)
- D] 144 half-cell N-type TOPCon 2 kính – AE14TXXXVHC16B5 (570–590 Wp)
- E] 132 half-cell N-type TOPCon 2 kính – AE13TDXXXTHC16B5 (605–620 Wp)
(Bảng khoảng cách lỗ lắp, kích thước lỗ, lỗ thoát nước và lỗ nối đất giữ nguyên như tài liệu gốc)


























